Atelier 17
Portfolio
Inspiration
Atelier 17
Portfolio
Inspiration

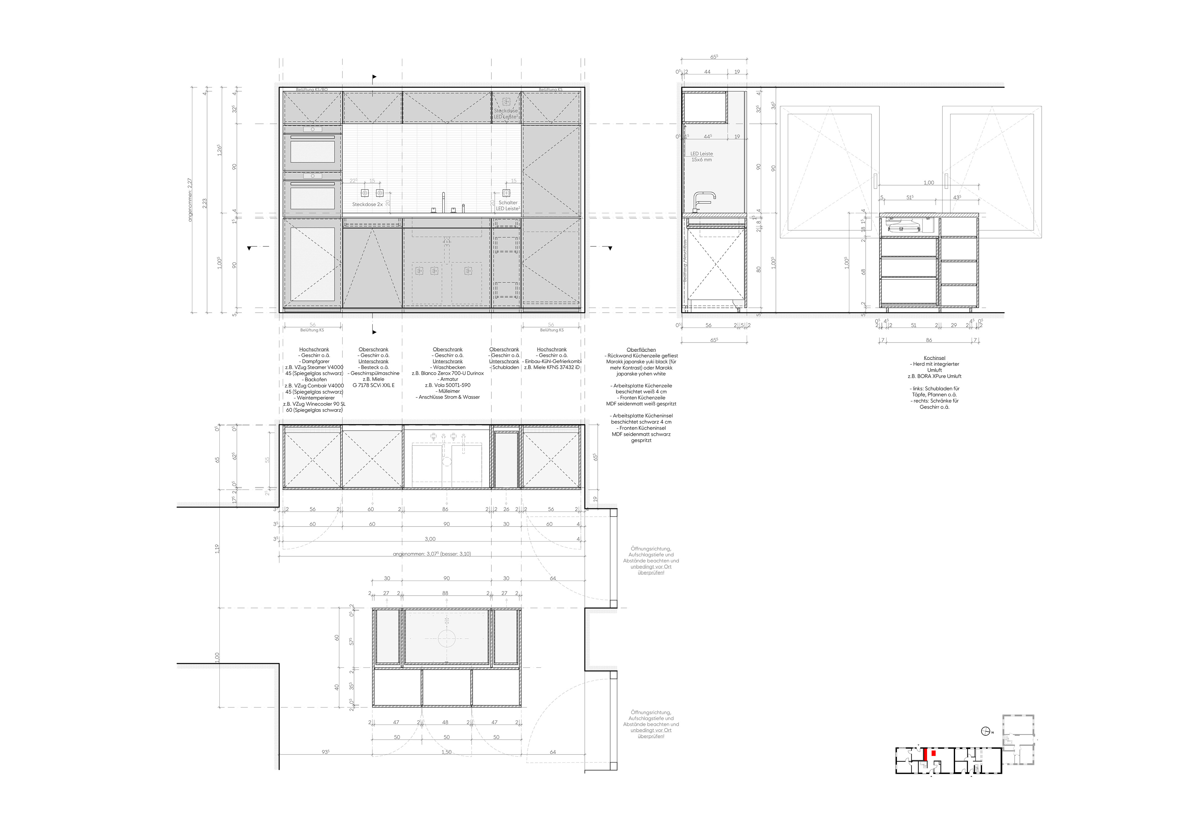
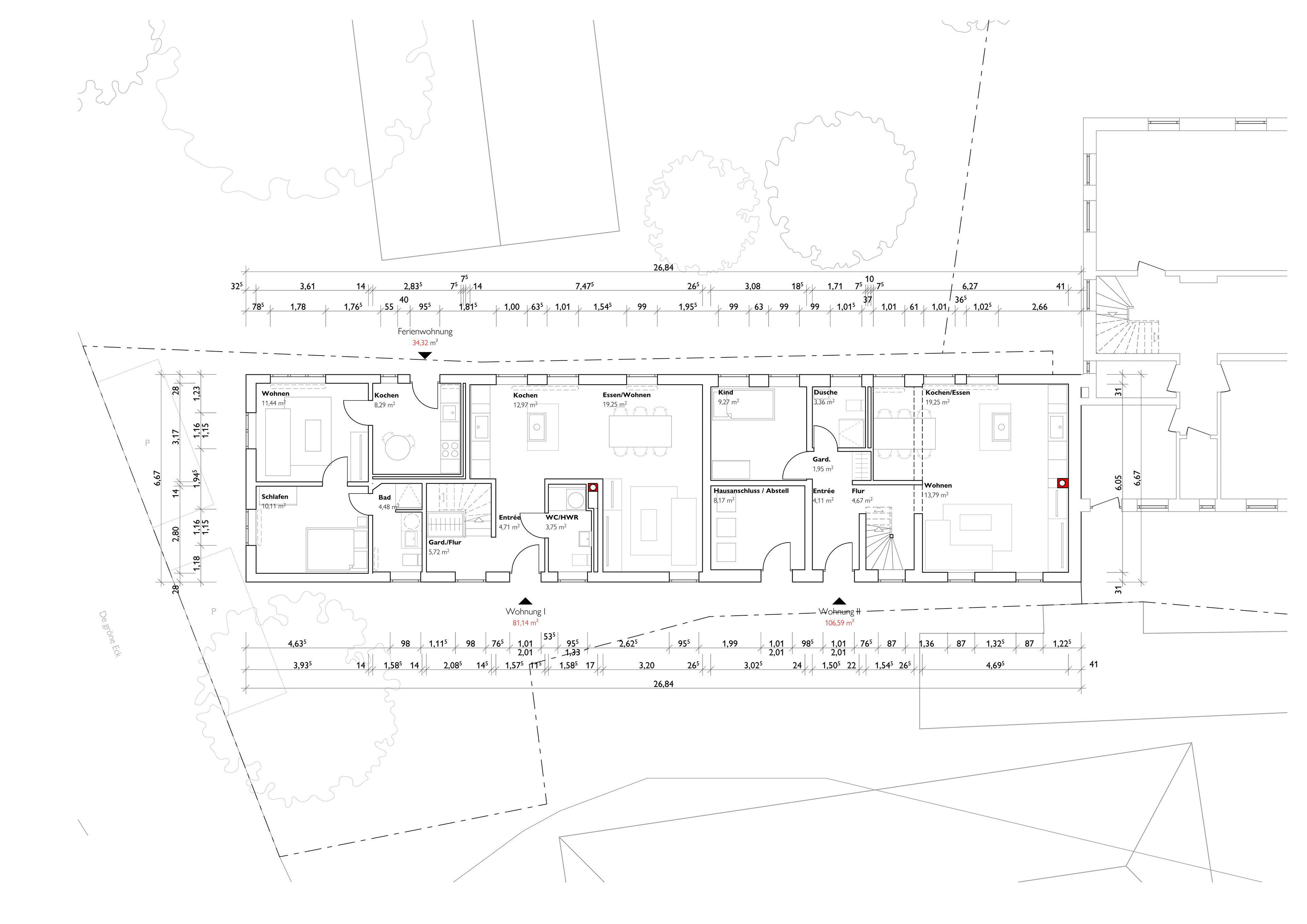
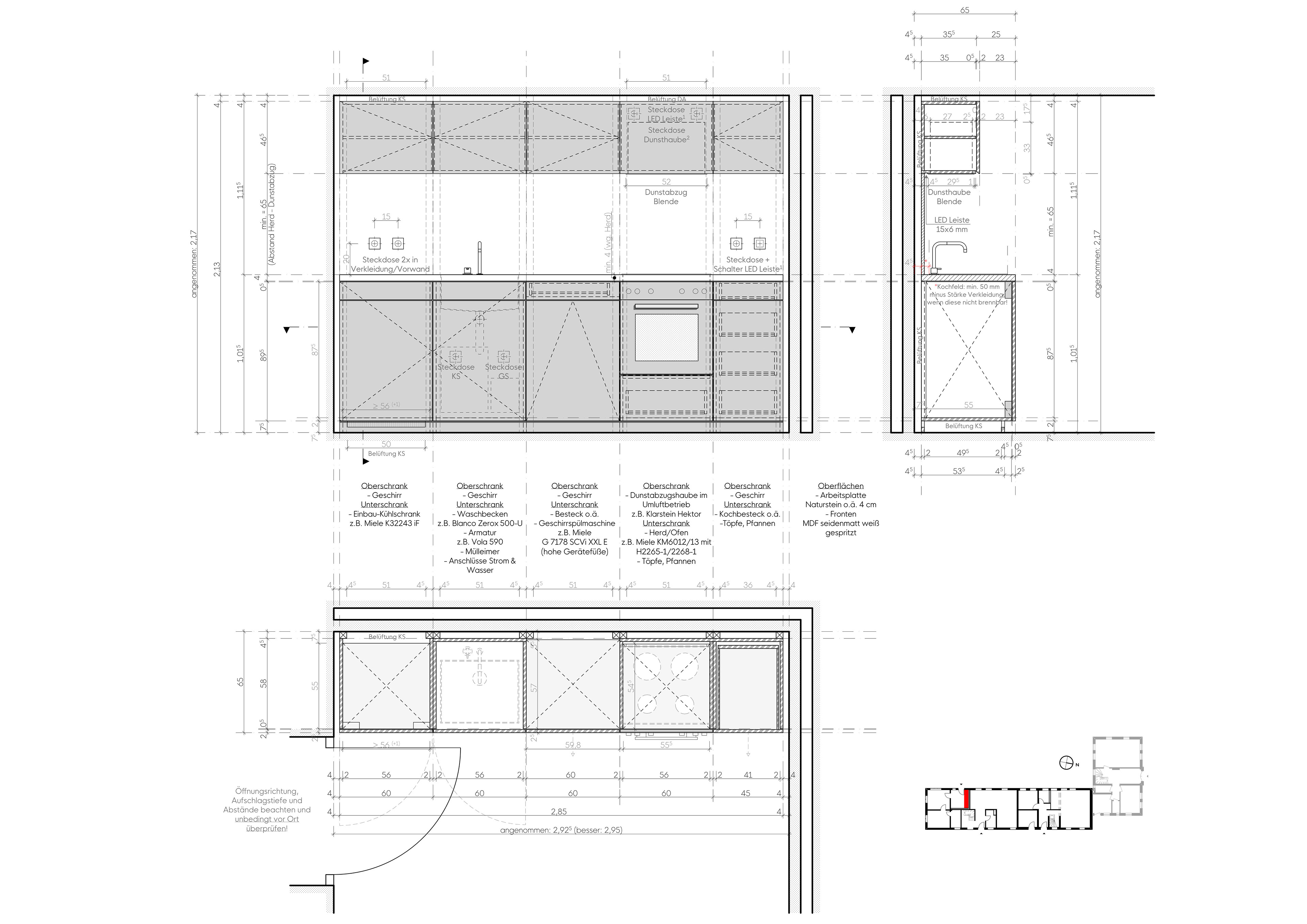
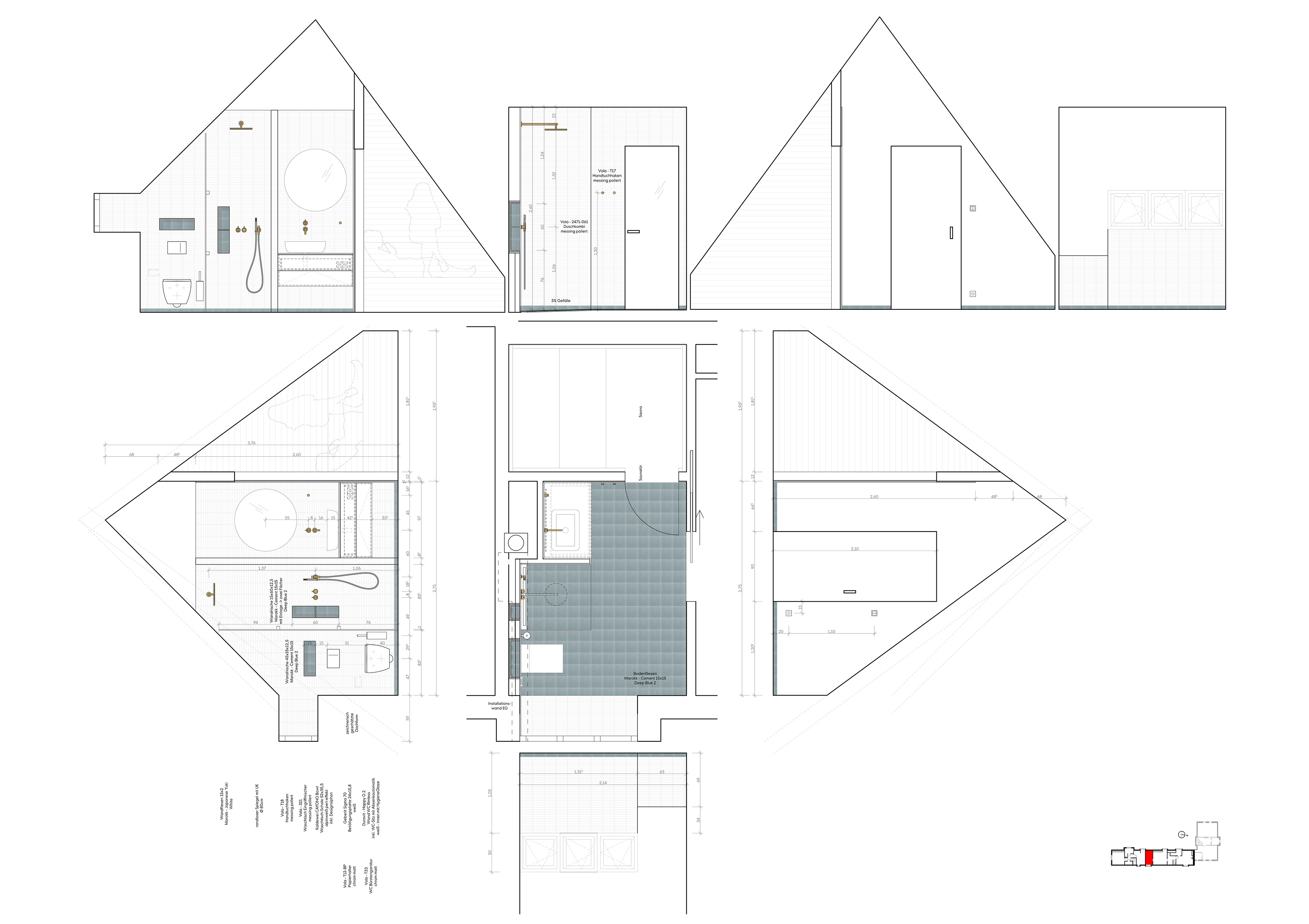
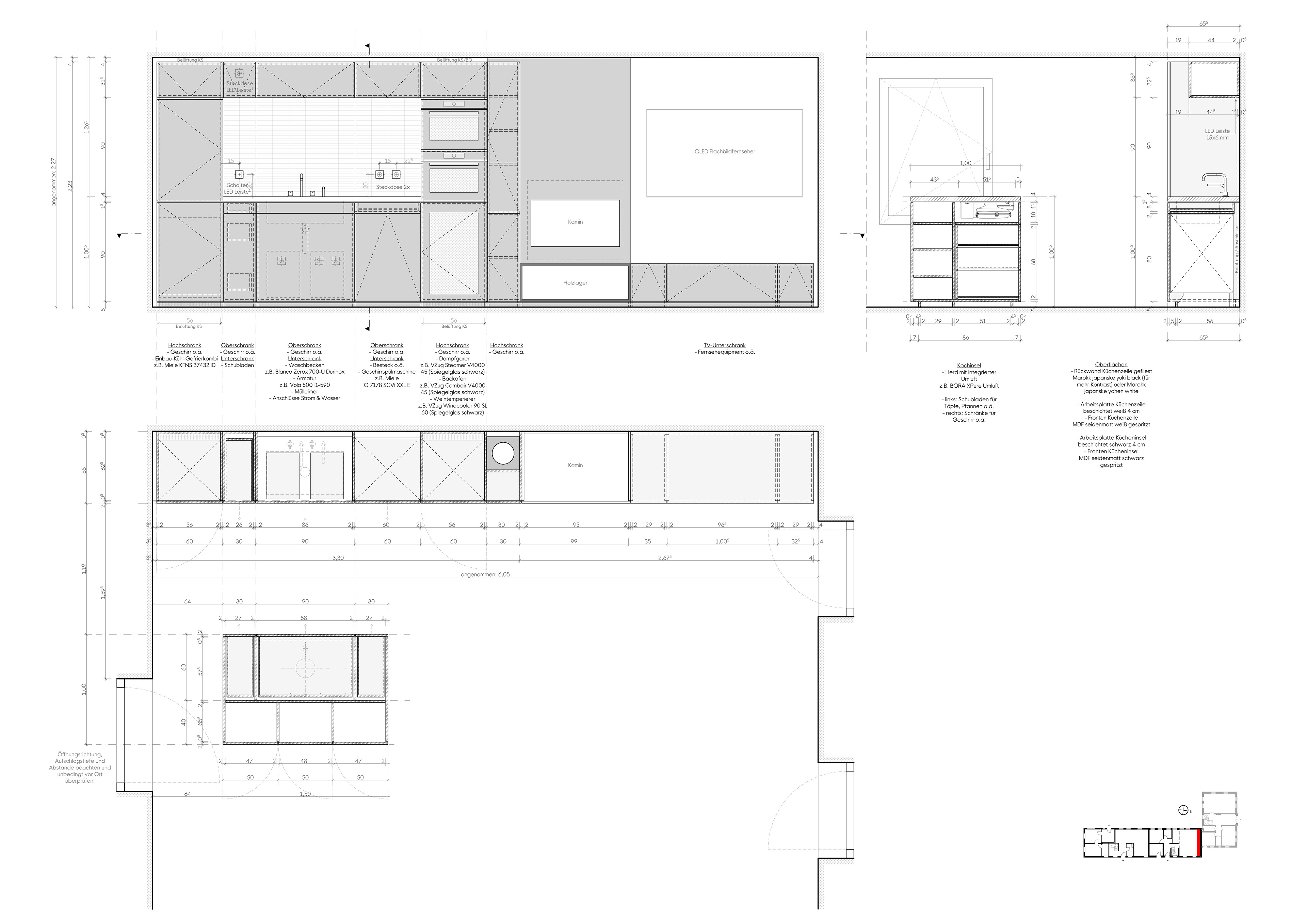
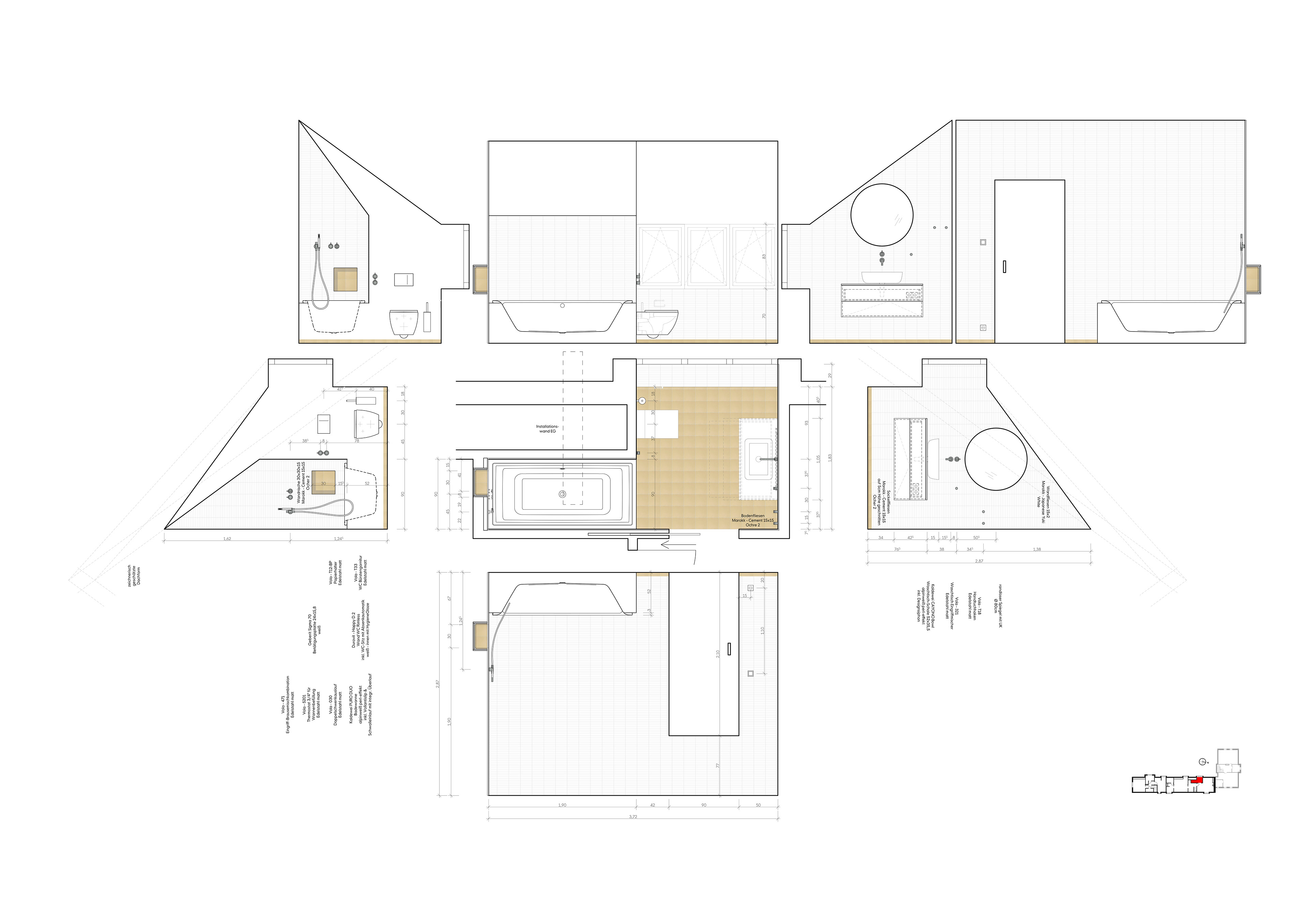
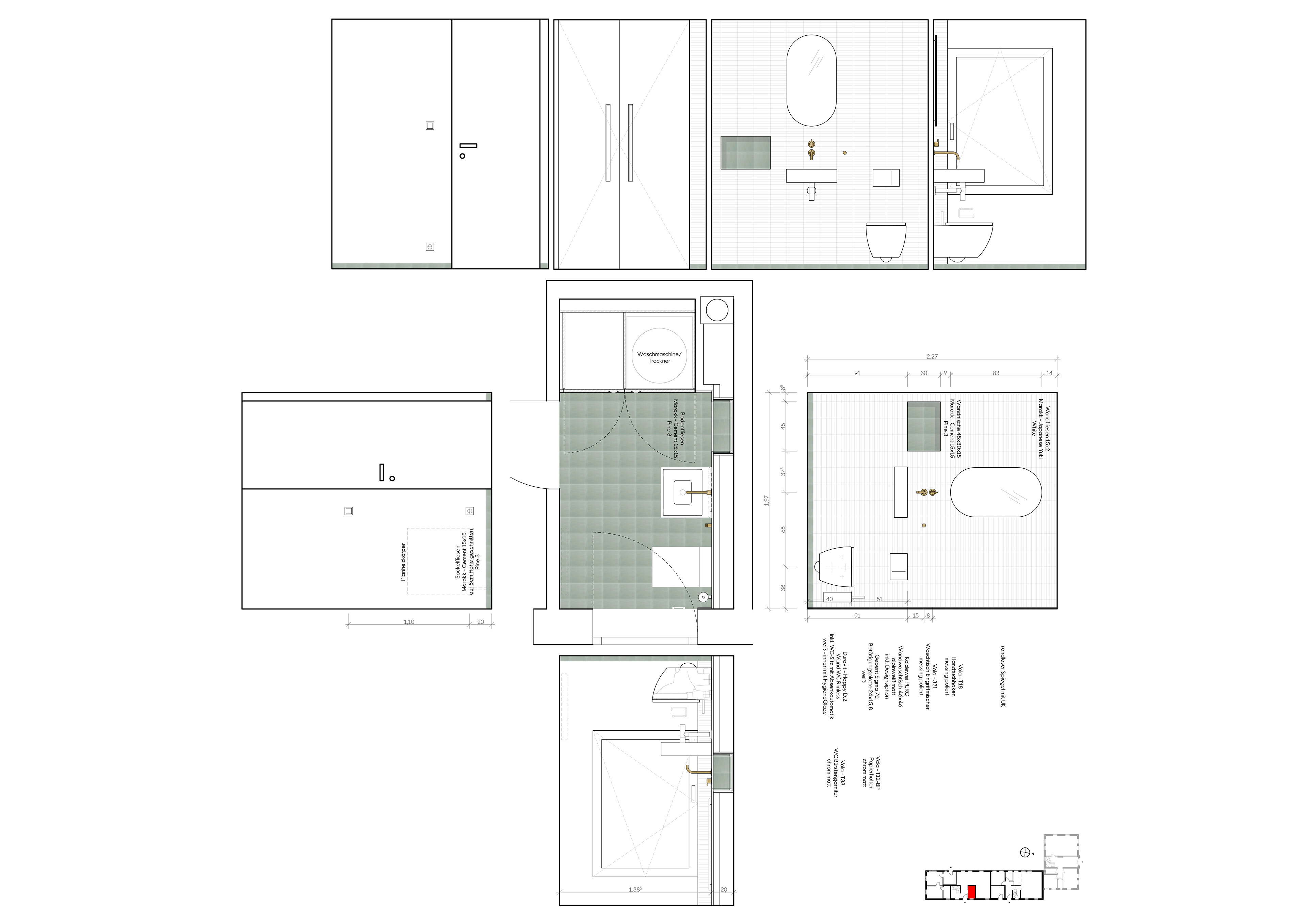
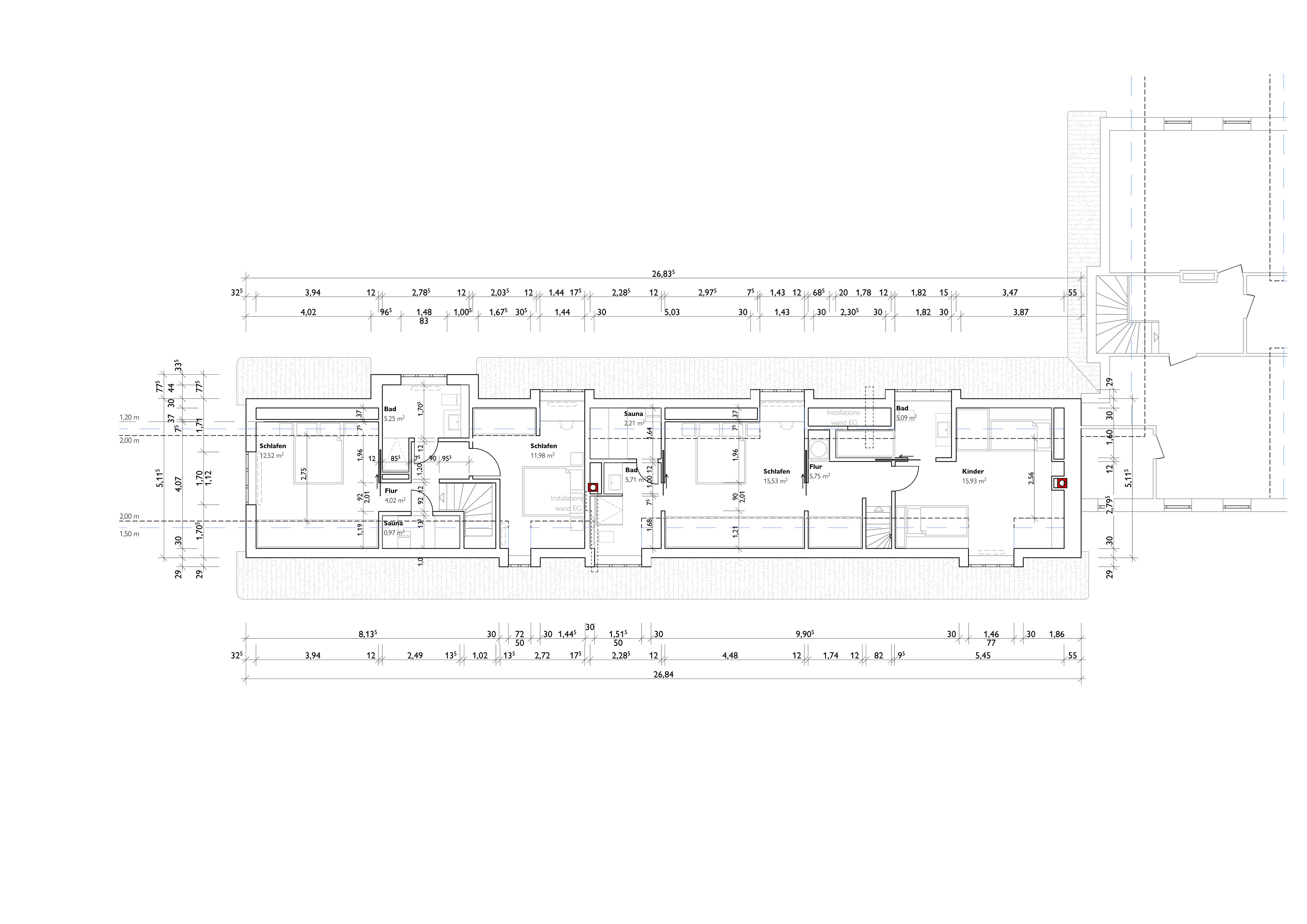
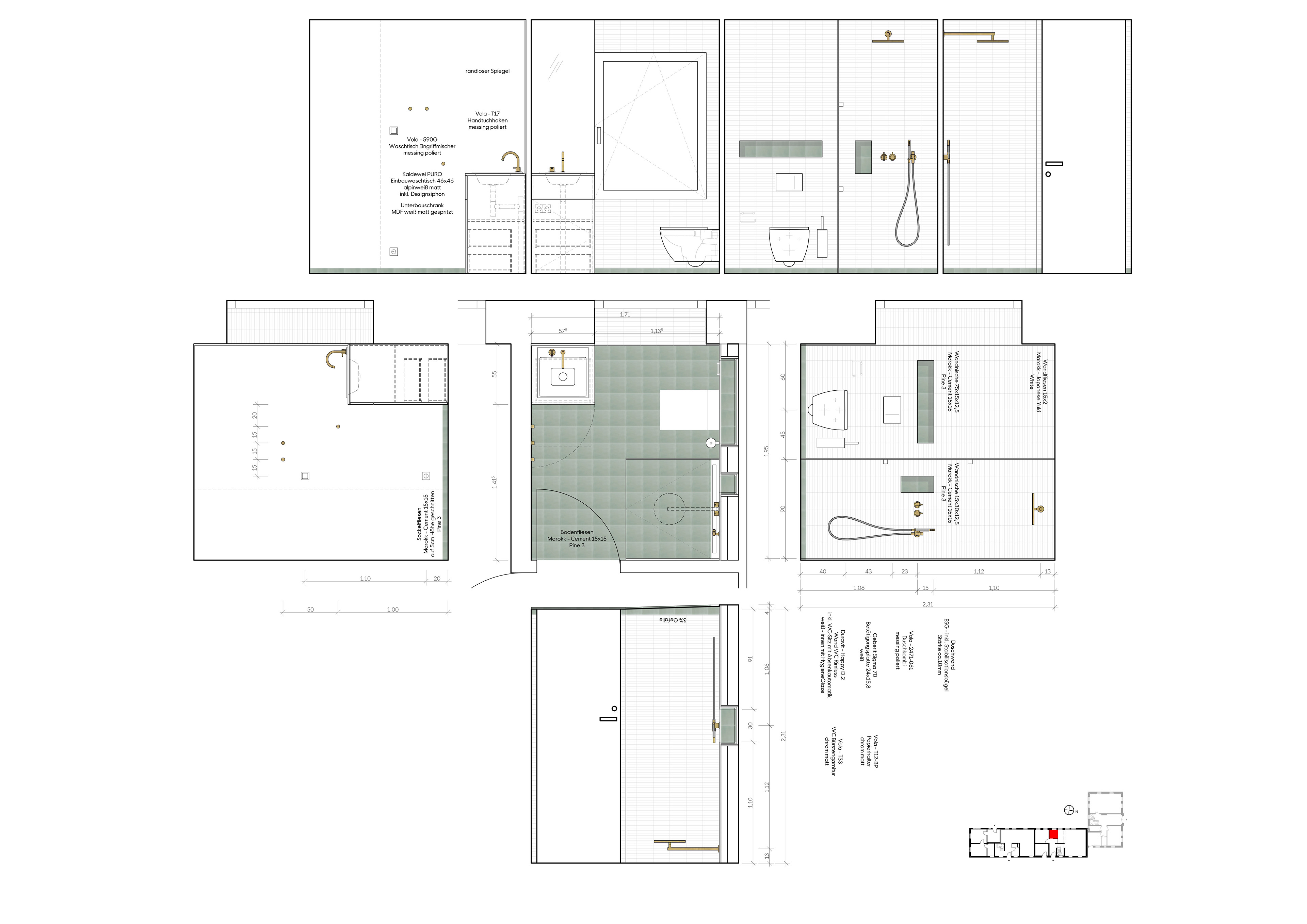
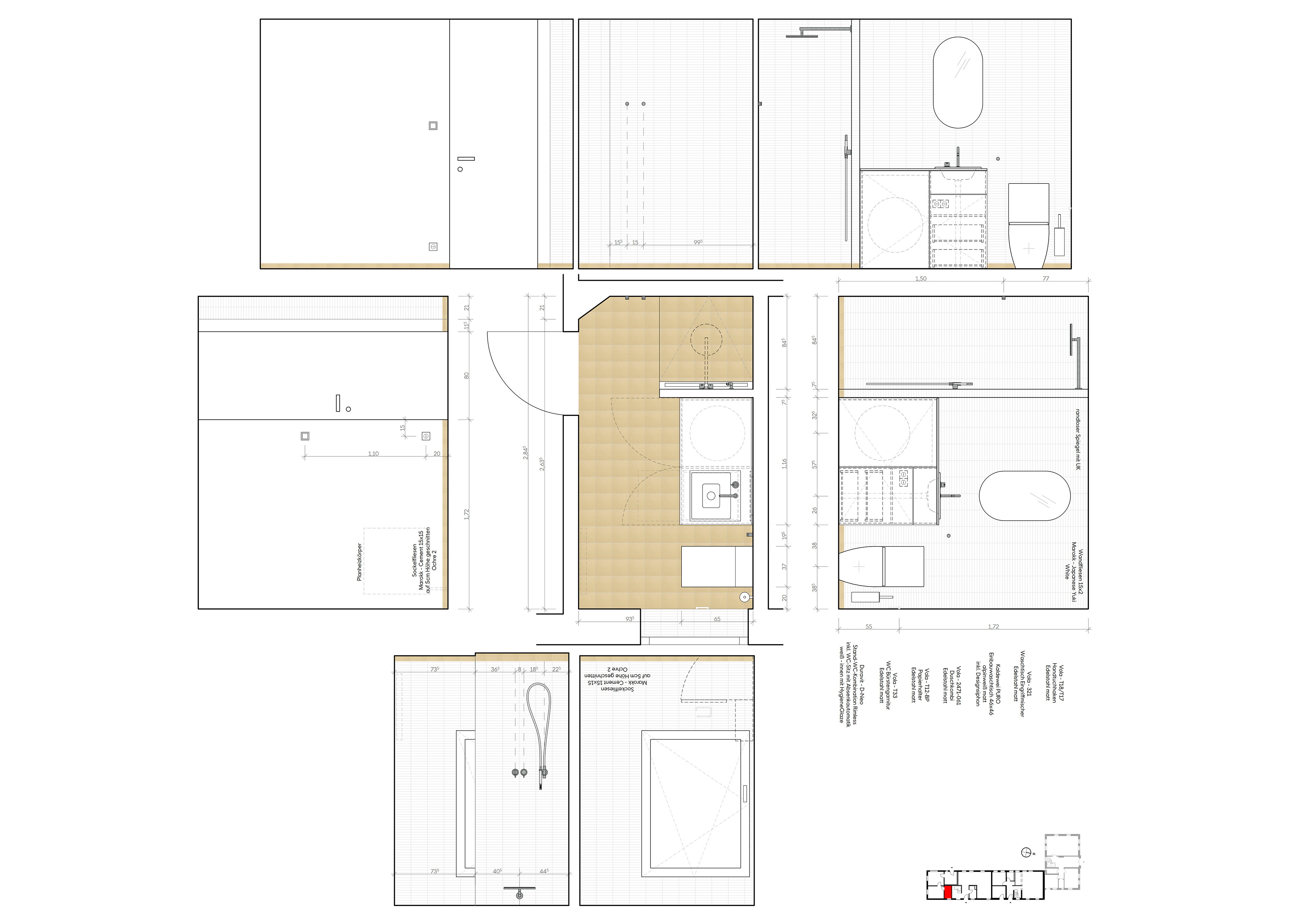
Ferienhaus in Nieblum

Im Zuge einer Sanierung eines Reetdachhauses in Nieblum auf der Nordseeinsel Föhr sollte eine Umbaustudie mit Konzepten u.a. für Küchen und Bäder entstehen. Entstanden in Kooperation mit der Unternehmensgruppe Von der Mark.

Impressum | Datenschutz

Cookies werden zur Benutzerführung und Webanalyse verwendet und helfen dabei, diese Webseite zu verbessern. Datenschutz ist uns wichtig, weswegen wir Ihre IP-Adresse anonymisieren! Mit dem Klick erklären Sie sich damit einverstanden. Akzeptieren