



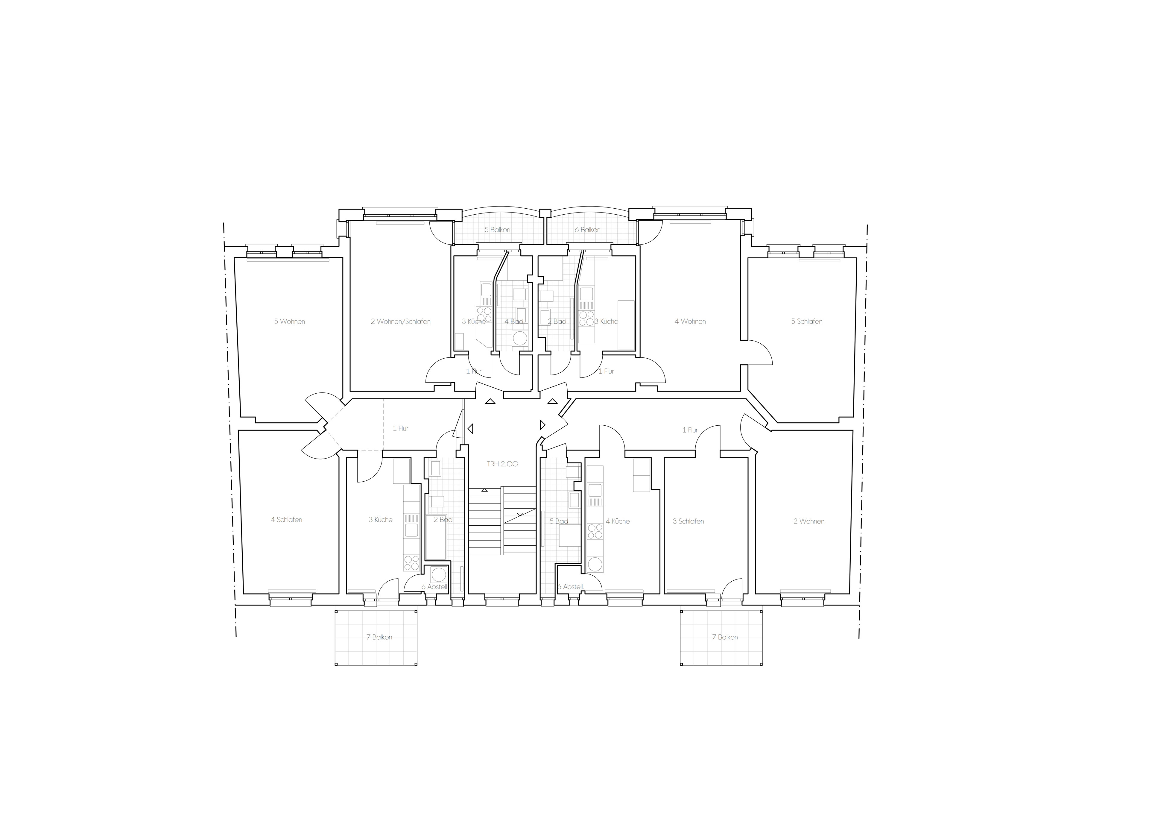
Im Zuge einer Bestandsaufnahme mit Aufmaß & Abgeschlossenheit eines Wohnhauses in Hannover-List mit Baujahr 1907, sollten u.a. die unterschiedlichen Ausbaustände der Wohnungen - aus den 1950er Jahren bis heute - erfasst und in einem Raumbuch dokumentiert werden. Privater Auftraggeber.